自动售货机PLC控制系统设计(三菱FX2N)(附触摸屏仿真程序,电气原理图)

资料介绍:
自动售货机PLC控制系统设计(三菱FX2N)(附触摸屏仿真程序,电气原理图)(论文说明书9200字,触摸屏程序,电气原理图)
摘要:本文通过对自动售货设备的工作任务进行研究,以一个简化的自动售货设备作为课题的研究对象,以三菱FX2N系列PLC为控制核心进行控制系统的设计。对售货过程中的各商品的售货流程、选择货物流程、退币流程进行分析,重点对各环节的逻辑和需要注意的重点问题进行总结,整理了控制系统的设计思路,分别从控制系统的硬件部分、软件部分两方面介绍了设计过程。通过统计外围I/O信号的种类和数量,选取了合理经济的PLC型号,并根据对应型号的PLC模板接线原理图,结合本课题的具体要求,设计了电气接线原理图,根据工作流程的分析为基础,在三菱Gxdeveloper软件环境下完成了梯形图程序的编制,并通过仿真环境验证了程序的逻辑,验证结果表明,本课题的软件运行效果与售货机的实际需求完全匹配。
通过本次控制系统的设计,PLC的快捷、可扩展性、高可靠性优点得到了集中体现,更深一层的学习了PLC的应用技能。
关键词:自动售货;FX2NPLC;控制系统
[资料来源:http://doc163.com]




[版权所有:http://DOC163.com]
目录
1、引言 5
2 自动售货设备的研究现状 5
2.1 国外发展现状 5
2.2 国内发展现状 5
2.2 自动售货控制系统的研究意义 6
3 控制系统设计的主要目标及思路 6
3.1 主要目标 6
3.2自动售货机的控制需求 6
3.2.1 控制任务 6
3.2.2 系统控制要求 7
3.2 设计思路 7
4、系统的硬件及软件设计 10
4.1 硬件设计 10
4.1.1 PLC系统的I/O地址分配 10
4.1.2 PLC的选型 11
4.1.3 PLC控制原理图的设计 12
4.2 软件设计 13
4.2.1 程序流程图设计 13
4.2.2 PLC程序编制 14
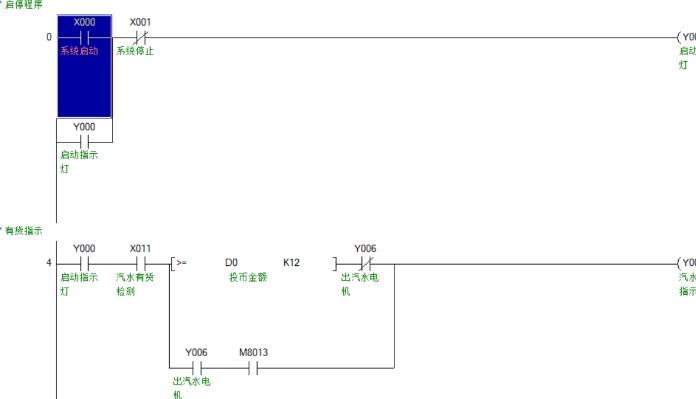
4.2.3 启动和有货判断程序 14
4.2.4 投币金额的计算程序 14
4.2.5 找零金额计算和购买商品程序 15 [资料来源:Doc163.com]
4.2.6 出货程序及找零输出 15
4.3 程序仿真验证 16
4.3.1 仿真环境及步骤 16
4.3.2 仿真过程 16
第五章总结 19
参考文献 20
谢辞 21 [资料来源:Doc163.com]
下一篇:基于PLC的脉冲除尘系统设计(附电气原理图,PLC程序,三菱FX2N)
