苏州市轨道交通木渎站围护结构和主体结构设计

苏州市轨道交通木渎站围护结构和主体结构设计(任务书,开题报告,计算说明书17000字,CAD图1张)
摘要
木渎站是苏州轨道交通一号线车站,位于苏州市吴中区木渎镇,车站东西向长257m,结构底板最大埋深约16m,相应标高为-12.14m,拟采用明挖法施工,本站主体结构为地下二层三跨岛式车站。
本设计的主要内容包括:车站设计资料收集与分析、车站地质工程初步勘察说明、车站建筑布置图等图纸、车站基坑的支护结构方案布置(理正基坑)、车站主体结构的结构荷载法设计(结构力学求解器)、车站主体结构配筋及其验算。
主要内容如下:
围护结构采用地下连续墙,明挖顺筑法施工;基坑等级为一级;支锚类型为内撑
车站主体结构为框架结构、墙板受力体系,顶、中、底板与中柱、边柱形成一闭合框架。
车站内衬墙与围护结构之间设置柔性防水层,采用复合式结构。
关键词:岛式车站 框架结构 地下连续墙 明挖顺筑法
The main structure and enclosure structure design of
Mudu station
Abstract
Mudu station is Suzhou Rail Transit Line 1 station, located in Suzhou Mudu Wuzhong District, the station to long 257m, the structure of the floor of the maximum depth of about 16m, the corresponding elevation for -12.14m, intends to use the open cut construction method and the main structure for underground two-story three Bay island style station. [资料来源:Doc163.com]
This design main content includes: First, the collection and analysis of station design information; preliminary geological engineering survey; the station building layout drawings; Second, The arrangement station foundation pit supporting structure ; Last, the main structure of the structure design and the principal structure reinforcement and load method.
The conclusion of this design report:
The retaining structures of the station is slurry wall, using open cut method,the foundation pit level is the firet class and the anchor type is internal bracing.
The main structure of the station is frame structure. The roof, medium plate and the floor form a closed frame.
Between the inner wall and retaining station is the flexible waterproof layer, using complex texture.
Key Words:island station; frame structure; slurry wall; open cut method
1.1工程概况
苏州市轨道交通一号线总体呈东西走向,线路西起于吴中区木渎镇北侧天平山东麓,沿竹园路东行进入苏州国家高新技术开发区后,往北转入长江路,经苏州乐园,东折进入邓尉路,沿邓尉路东行,穿过京杭大运河,进入金阊区,沿干将路东行,进入苏州工业园区,至钟南街站,线路全长约25.739km,全线设站24座,均为地下车站。
木渎站位于苏州市吴中区木渎镇,金山路与竹园路交叉口处,东北侧为空地,西北侧为上岛咖啡及山雨墅,西南侧为中华园饭店,东南侧为商铺,轨道交通一号线测设里程右DK0+280.000处,车站型式为地下二层岛式,车站东西向长257m,结构底板最大埋深约16m,相应标高为-12.14m,拟采用明挖法施工。
该工程重要性等级为一级,工程安全性等级为一级,场地等级为二级,地基等级为二级,基坑侧壁安全等级为一级,勘察等级为甲级。
[资料来源:Doc163.com]




目录
第一章 工程概况 1
1.1工程概况 1
[来源:http://www.doc163.com]
1.2区域地形地貌 1
1.3地基土的分布及特征 1
第二章 设计依据和标准 6
2.1设计依据 6
2.2设计内容与要求 6
2.3方案选择 7
第三章 围护结构 8
3.1理正电算 8
3.1.1基本信息 9
3.1.2超载信息 9
3.1.3土层信息 10
3.1.4土层参数 10
3.1.5支锚信息 11
3.1.6土压力模型及系数调整 14
3.1.7工况信息 15
3.1.8结构计算 15
3.1.9 冠梁选筋结果 22
3.1.10环梁选筋结果 22
3.1.11截面计算 23
3.1.12整体稳定验算 24
3.1.13抗倾覆稳定性验算 25
3.1.14抗隆起验算 29
3.1.15隆起量的计算 31
3.1.16抗管涌验算 32 [资料来源:http://doc163.com]
3.1.17嵌固深度计算 33
3.2 手算部分 34
3.2.1计算简图 34
3.2.2计算参数的确定 34
3.2.3土压力计算 35
3.2.4 内支撑轴力计算 37
第四章 主体结构的设计 40
4.1地下主体结构构件尺寸设定 40
4.2主体结构设计荷载及其组合 40
4.3主体结构内力计算 45
4.4主体结构抗浮验算 60
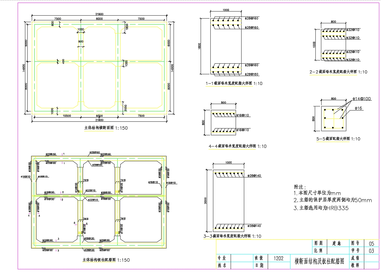
第五章 主体结构配筋计算 72
5.1 标准横截面配筋计算 72
5.1.1 梁配筋及裂缝验算 72
5.1.2 柱配筋及裂缝验算 77
5.2 纵截面配筋计算 83
5.2.1 梁配筋及裂缝验算 83
5.2.2 柱配筋及裂缝验算 88
总结 93
参考文献 95
致谢 96 [版权所有:http://DOC163.com]
