套加工工艺及夹具设计(含CAD零件图夹具图,工艺卡,工序卡)

套加工工艺及夹具设计(含CAD零件图夹具图,工艺卡,工序卡)(任务书,论文说明书9200字,CAD图纸4张)
摘 要
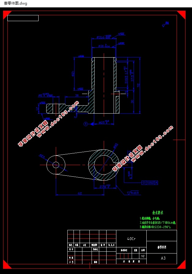
本次设计的主要内容是套加工工艺规程及 孔钻孔夹具的设计。套主要是与其它零件配对使用,其主要加工表面及控制位置为 外圆和 内孔。由零件要求分析可知,保证 孔和 外圆尺寸的同时应该尽量保证其同轴度,这对于后工序装配和总成使用上来说都有重要影响。所以,工序安排时,采取以 大外圆粗定位夹紧加工后,对 孔进行镗削加工同时成型。因其粗糙度为Ra3.2,可通过粗镗、半精镗满足。对于钻 孔时,主要以套的已经加工出的 定位,控制其自由度,以达到加工出来的产品满足要求并且一致性好的目的。本文的研究重点在于通过对套的工艺性和力学性能分析,对加工工艺进行合理分析,选择确定合理的毛坯、加工方式、设计高效、省力的夹具,通过实践验证,最终加工出合格的套零件。
关键词:套,工艺规程,钻孔,工艺路线,加工方式;
零件的作用:
题目所给的零件是套,而套一般是圆柱状并带有底座,圆柱体中间一般都有需要镗床或者铣床加工的有精度的孔,其作用是用来与其它部件进行连接的。此次课题的任务就是”套加工工艺及夹具设计“,通过分析制定套零件的加工工艺和夹具设计,来围绕套这个零件来进行工艺以及夹具设计。
[资料来源:www.doc163.com]




目录
摘 要 3 [资料来源:http://Doc163.com]
Abstract 4
1、绪 论 4
2、零件的分析 5
2.1、零件的作用 5
2.2、零件的工艺分析 5
3、确定毛坯,绘制毛坯图、零件图 8
3.1、确定毛坯的制造形式及材料 8
3.2、机械加工余量、工序尺寸及毛坯尺寸的确定 8
4、工艺规程设计 10
4.1、定位基准的选择 10
4.2、制定工艺路线 10
4.3、选择加工设备及刀、夹、量具 14
4.4 确定切削用量及基本工时 16
4.4.1粗车端面与Φ31.6 f7外圆至Φ32.6并保证长度40 17
4.4.2 车Φ40外圆端面并倒R2的圆角 18
4.4.3精车Φ31.6 f7 外圆至要求 18
4.4.4钻内孔Φ25 19
4.4.5精铰内孔 19
4.4.6倒角1x45° 20
4.4.7车槽1.7x0.3及退刀槽3x0.5..........23
4.4.8车另一端面并倒角................24
4.4.9插6f 9 键槽至要求........24
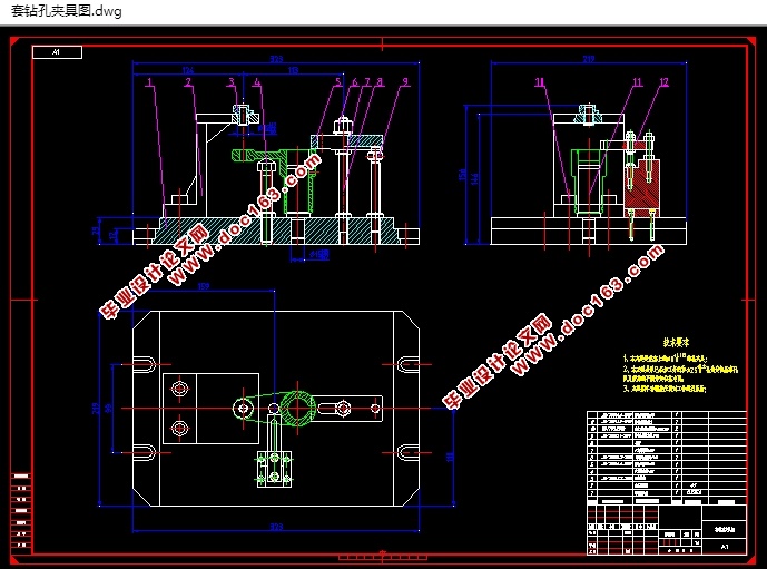
5、钻孔夹具的设计 26
5.1定位基准的选择 26
5.2定位误差的分析 26
5.3切削力及夹紧力的计算 20
5.4夹紧元件及动力装置确定 28
5.5夹具设计及操作的简要说明 28
小 结 28
致 谢 29
参考文献 29 [来源:http://Doc163.com]
上一篇:连杆体机械加工工艺过程与螺孔专机夹具设计(含CAD零件装配图,工艺工序卡)
下一篇:填料箱盖工艺规程及夹具设计(含CAD零件图夹具图,工艺卡工序卡)
