车床尾座体机加工工艺及工装设计(含CAD零件图和夹具装配图)

车床尾座体机加工工艺及工装设计(含CAD零件图和夹具装配图)(任务书,开题报告,设计说明书17000字,CAD图6张,工序卡,工艺路线卡)
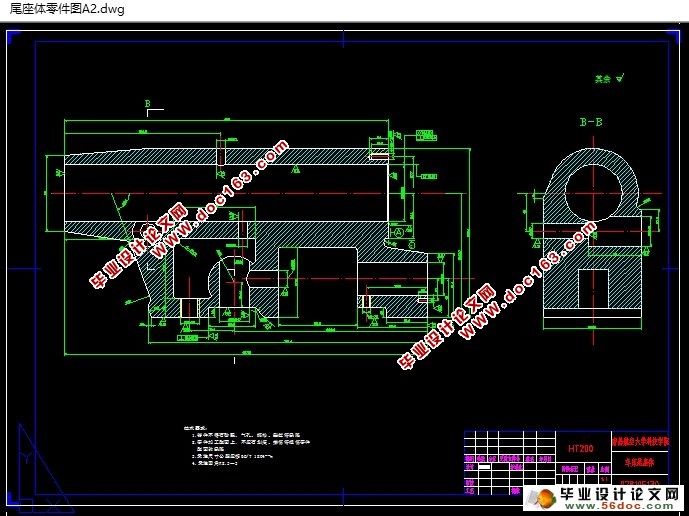
摘要:尾座体是车床上的重要的部件之一,是车床上用以支撑轴类零件车削加工和实施钻孔的主要车床附件。本文针对某类给定的尾座体进行了加工工艺与工装的设计,完成了以下工作:
(1) 概述了尾座体的技术和现状发展;
(2) 对尾座体进行了工艺分析,并提出了两种方案进行比较;
(3) 编制了尾座体的工艺规程,完成了其工序卡的设计;
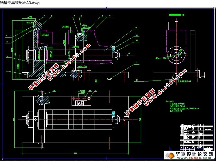
(4) 针对工艺中的某重要工序,设计完成了一套铣槽夹具和镗孔夹具,包括定位元件,夹紧机构、对刀块、夹具体的设计并分析了定位误差。
关键词:尾座体 工艺 工装 设计
Lather tail the craft work of the body
pack a design
Abstract: stalk spare parts, the car pares to process the main lather enclosure that drills a hole with implementation.
This text aims at a certain the tail body giving certainly carried on to process the design that craft and work pack and completed once work:
[资料来源:Doc163.com]
(1)All said a tail the technique and present condition development of the body;
(2)Carried on craft analysis to the tail body, and put forward two kinds of projects to carry on a comparison;
(3)Drew up a tail body of craft regulations, completed the design of its work preface card;
(4)Aim at a craft in of some important work preface, designed to complete a set of Xian slot tongs, including fixed position component, clipped tight organization, to the knife piece, clip a concrete design and analyzed a fixed position error margin.
Keywords: tailstock craft clamping design
[资料来源:Doc163.com]



[来源:http://www.doc163.com] 
目 录
1. 绪 论 1
2. 尾座体的工艺设计 3
2.1 机械加工工艺规程概述 3
2.1.1工艺规程的作用 3
2.1.2制定工艺规程的原则 3
2.1.3制订工艺规程的步骤 3
2.2 工艺分析 4
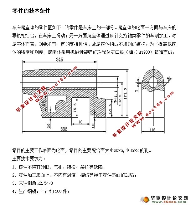
2.2.1零件的技术条件 4
2.2.2加工表面及其要求 5
2.2.3零件的材料 5
2.3 毛坯的选择 5
2.3.1毛坯的种类 6
2.3.2毛坯选择时应考虑的因素 6
2.3.3确定毛坯的类型及制造方法 7
2.4 基准的选择 8
[资料来源:https://www.doc163.com]
2.5 机械加工工艺路线的拟订 9
2.5.1表面的加工方法的选择 9
2.5.2加工工艺路线的拟订 11
2.6 机械加工余量、工序尺寸及公差的确定 13
2.7 选择机床设备及工艺装备 14
3. 尾座体的工装设计 15
3.1 夹具概述 15
3.1.1概述 15
3.1.2定位方案及定位元件 17
3.1.3夹紧装置 18
3.1.4定向键、对刀块 19
3.1.5夹具体 20
3.1.6标注尺寸和公差配合 20
3.2 铣槽夹具设计 21
3.2.1加工要求 21
3.2.2铣床夹具的主要类型 21
3.2.3定位方案的选择 22
3.2.4夹紧装置的确定 24
3.2.5定位键、定向键、对刀块的确定 25
3.2.6夹具体的确定 26
3.2.7铣槽夹具的确定 27
3.3 镗模夹具设计 29
3.3.1加工要求 29
3.3.2镗孔工具设计 29
3.3.3定位方案及定位元件的设计 30
3.3.4夹紧装置的确定 32
3.3.5底座和支架设计 33
3.3.6镗孔夹具的确定 35
4. 全文总结 36
4.1 本文的主要工作 36
4.2 毕业设计心得 36
参 考 文 献 37
致 谢 38
[来源:http://www.doc163.com]
上一篇:汽车连杆加工工艺及夹具设计(含CAD零件图装配图,工艺卡)
下一篇:EQ131汽车变速箱二轴工艺文件的制订及14铣键槽夹具设计
